Museums

Hermitage Modern Contemporary Museum

Moscow, Russia State Hermitage Museum / LSR Group Commissioned — Design completed

A satellite museum for the State Hermitage within Moscow's ZIL district redevelopment — establishing a major cultural anchor through contemporary art galleries, public cultural spaces, and educational facilities that extend the Hermitage's institutional mission into a new urban context.

Moscow’s ZIL district — named for the former Likhachov automobile factory that once occupied the area — has been the subject of a large-scale urban regeneration effort to transform a Soviet-era industrial zone into a mixed-use cultural quarter. Asymptote’s project for the State Hermitage Museum anchors this transformation with a satellite institution that extends the Hermitage’s collection and curatorial mission from St. Petersburg into a wholly new urban context.

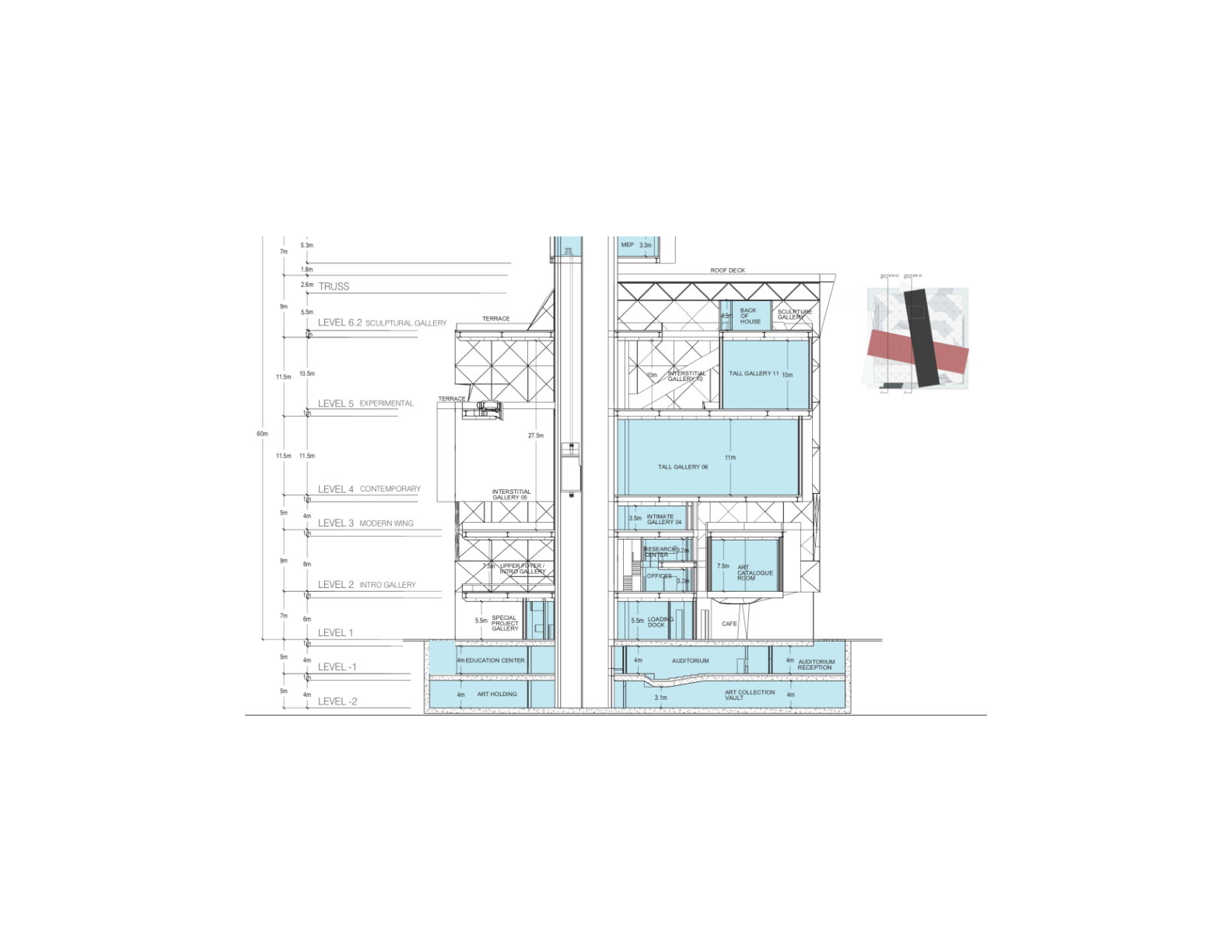
Galleries & Program

The museum organizes flexible gallery environments that accommodate a wide range of contemporary art practices, from large-scale installations to intimate exhibition spaces. Public promenades and gathering areas integrate the museum into the daily life of the surrounding district, creating opportunities for cultural engagement beyond the traditional gallery experience.

Form & Architecture

The building’s sculptural form establishes a distinctive presence within the ZIL masterplan, articulating the institution’s civic identity through bold architectural gestures. The design emphasizes transparency, spatial continuity, and visual connectivity between interior galleries and the surrounding public landscape.

Urban Catalyst

As a key cultural institution within the ZIL redevelopment, the Hermitage Modern Contemporary Museum serves as an urban catalyst — anchoring the district’s transformation from industrial legacy to vibrant mixed-use neighborhood and reinforcing Moscow’s position as a center for contemporary art and culture.